1
/
of
4
Locinox
MAMMOTH Hydraulic 180° Self-Closing Gate Hinge
MAMMOTH Hydraulic 180° Self-Closing Gate Hinge
Regular price
£251.20
Regular price
Sale price
Unit price
/
per
£251.20
Shipping calculated at checkout.
Couldn't load pickup availability
Elegant and powerful self-closing hinge for 180° gate situations. Mammoth is perfectly fit for gates up to 150 kg and 1500 mm wide. It is equipped with a double bearing for exceptional functionality. The Active Thermal System guarantees a constant closing speed, unaffected by weather conditions. The Dino hinge is included.
- Self-closing hinge with patented hydraulic damping
- Aesthetic design
- Powder coated aluminium housing
- Closing speed unaffected by temperature changes
- Easy to open: Max. 16 Nm
- Vandal-proof
- For left and right opening gates
- Easy mounting with Quick-Fix
- 2-dimensionally adjustable (2 x 20 mm)
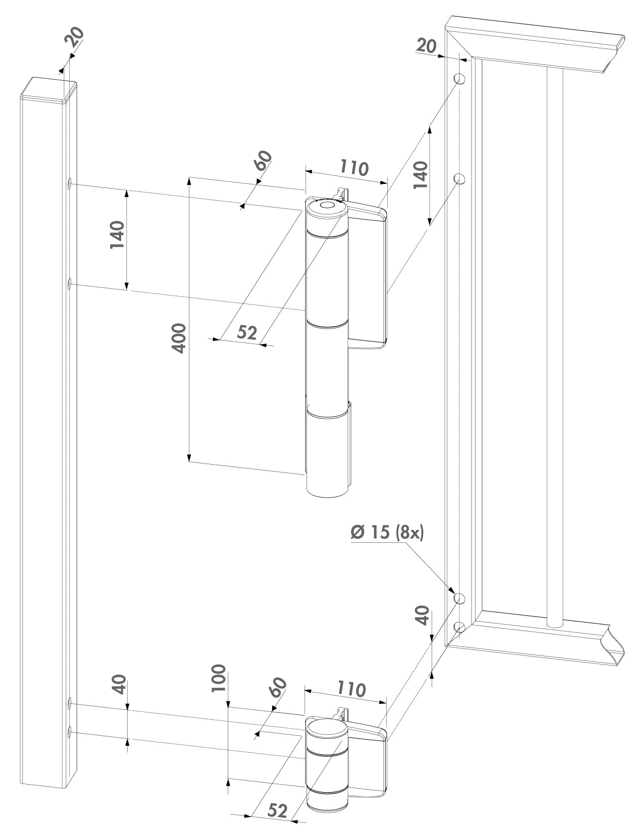
Download installation instructions here.
Download dimensioned product drawings here.
Download Architect/ Engineer specification here.




